Das Schulhaus Burgstrasse wurde 1910 erbaut und 1911 als erstes Sekundarschulhaus Riehens eingeweiht. 1929 und 1990 erweiterte der Kanton das Schulhaus jeweils um einen zusätzlichen Anbau, um die damals vorhandene Raumknappheit aufzuheben. Seit 2011 ist der Standort eine Primarschule. Das Schulhaus steht heute nicht mehr wie bei seiner Fertigstellung ausserhalb des Dorfkerns, sondern inmitten eines dichtbesiedelten Wohnquartiers.
Aktuelles Schuljahr 2025/26:
5 Kindergärten
12 Schulklassen

Die Primarstufe Burgstrasse hat zurzeit 12 Klassen. Die schuleigene Tagesstruktur umfasst 128 Plätze. Gemäss Prognosezahlen steigen beim Standort Burgstrasse die Schüler:innenzahlen in den nächsten Jahren deutlich an. Das bestehende Raumangebot, kann diesen Bedarf nicht mehr decken. Eine Erweiterung der Gesamtfläche ist zwar in Planung, jedoch ist dies schwierig, da eine Vergrösserung des Schulareals nicht möglich ist. Somit bleibt nur eine Erweiterung innerhalb des Gebäudes, was sehr eingeschränkt geht, da das Gebäude von 1910 unter Denkmalschutz steht. In der Folge wird als mittel- und langfristige Massnahme auch eine Anpassung der Gebietsperimeter nötig sein, um den benötigten Platzbedarf gewährleisten zu können.
Im Herbst 2021 wurde eine Machbarkeitsstudie für die Turnhalle erstellt, welche die nötigen Sanierungsmassnahmen für die bauliche Struktur des Hauses aufzeigt und Vorschläge macht, wie und zu welchen Bedingungen die Turnhalle umgestaltet werden muss, um die heutigen wie auch die mittelfristigen Bedürfnisse der Primarschule abzudecken. In der Folge hat ein Planerteam mit der Planung der Sanierung begonnen. Zusätzlich zur Sanierung soll auch das Untergeschoss der Turnhalle für die Nutzung der Tagesstruktur umgebaut werden.
Die Sanierungs- und Erweiterungsarbeiten wurden in den Sommer- bzw. Herbstferien 2025 abgeschlossen. Der Geräteraum neben der Turnhalle wurde vergrössert, die Bühne saniert und das Untergeschoss für die Tagesstruktur ausgebaut. Zudem wurde eine neue, außenliegende Treppe samt Lift gebaut, die eine direkte Erschliessung vom Pausenplatz aus ermöglicht. Zudem wurden Lagerräume für Schulmobiliar und -material erstellt.
Während die Turnhalle zum Beginn des Schuljahres 2025/2026 in Betrieb genommen werden konnte, gab es bei den Räumlichkeiten der Tagesstruktur Verzögerungen. Die Arbeiten konnten in den Herbstferien abgeschlossen und die Räumlichkeiten bezogen werden.














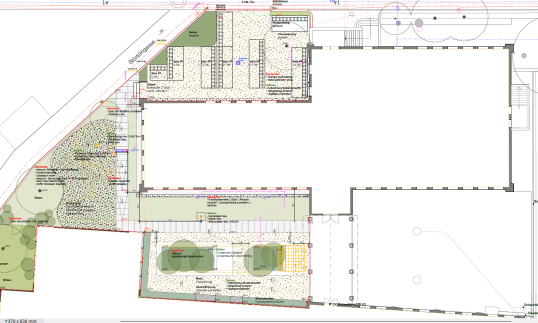
Der Aussenraum des Schulhauses wird zurzeit in Teilbereichen neu gestaltet. Das Projekt wertet die Grünflächen rund um den Schulstandort umfassend auf: entsiegelte Aufenthaltsbereiche, sickerfähige Beläge, grosszügige Pflanztröge mit Sitzgelegenheiten sowie schattenspendende Bepflanzung fördern Biodiversität und verbessern das Lokalklima. Ein barrierefreier, gut ausgeleuchteter Zugang von der Störklingasse zum Pausenplatz und Schulhaus wird geschaffen. Zusätzliche Velo- und Trottinettabstellplätze ersetzen bestehende Autoparkplätze, und defekte Spielgeräte werden erneuert. So entsteht ein attraktiver, klimafreundlicher Begegnungs- und Aufenthaltsort für Schülerinnen und Schüler sowie die Bevölkerung. Die Arbeiten sollen bis am 8. Mai abgeschlossen sein.

Aufgrund einer im Jahre 2023 erstellten Machbarkeitsstudie soll im Rahmen einer Projektierung definiert werden, welche baulichen Massnahmen für die räumliche Erweiterung umgesetzt werden können. Diese Massnahmen sollen das Flächendefizit so ausgleichen, dass das Unterrichts- und Betreuungsangebot für 12 Klassen möglichst ausreichend angeboten werden kann.
Voraussichtliche Sanierung und Erweiterung: Sommer 2033 - Sommer 2035